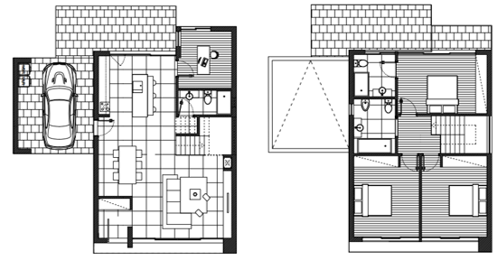
ML_08
Tipologias:
t3
Área:
165 m
2
Características:
1 suite
2 quartos
3 instalações sanitárias
Cozinha e sala em openspace
Escritório
Opção: garagem [22 m2]
Níveis de Eficiência:
perfection, supreme
Ver Ficha Técnica
Modelo Seguinte
Modelo Anterior