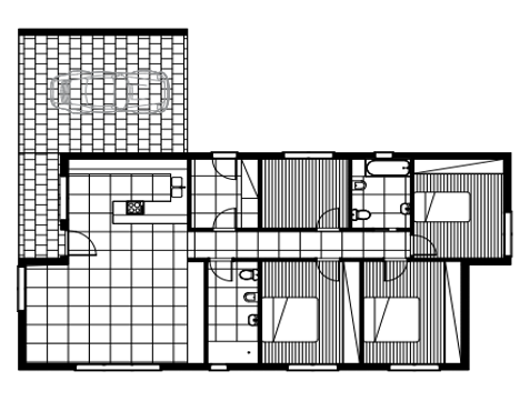
ML_03
Tipologias:
t3
Área:
147 m
2
Características:
3 quartos
2 instalações sanitárias
Cozinha e sala em openspace
Despensa/lavandaria
Escritório
Opção 1: alpendre/garagem [30 m2]
Níveis de Eficiência:
perfection, supreme
Ver Ficha Técnica
Modelo Seguinte
Modelo Anterior