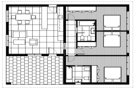
DR_06
Tipologias:
t3
Área:
134 m
2
Características:
1 suite
2 quartos
2 instalações sanitárias
Cozinha e sala em openspace
Alpendre
Níveis de Eficiência:
perfection, supreme
Ver Ficha Técnica
Modelo Seguinte
Modelo Anterior