DR_03
Tipologias:
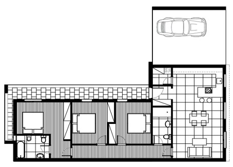
t3
Área:
141 m
2
Características:
3 quartos
2 instalações sanitárias
Cozinha e sala em openspace
Lavandaria/despensa
Opção: garagem [33 m2]
Níveis de Eficiência:
perfection, supreme
Ver Ficha Técnica
Modelo Seguinte
Modelo Anterior